Большие окна, спальня в нише и кухня в коридоре. Функциональная студия в Москве - Декорри

Большие окна, спальня в нише и кухня в коридоре. Функциональная студия в Москве

  • 15.01.2023

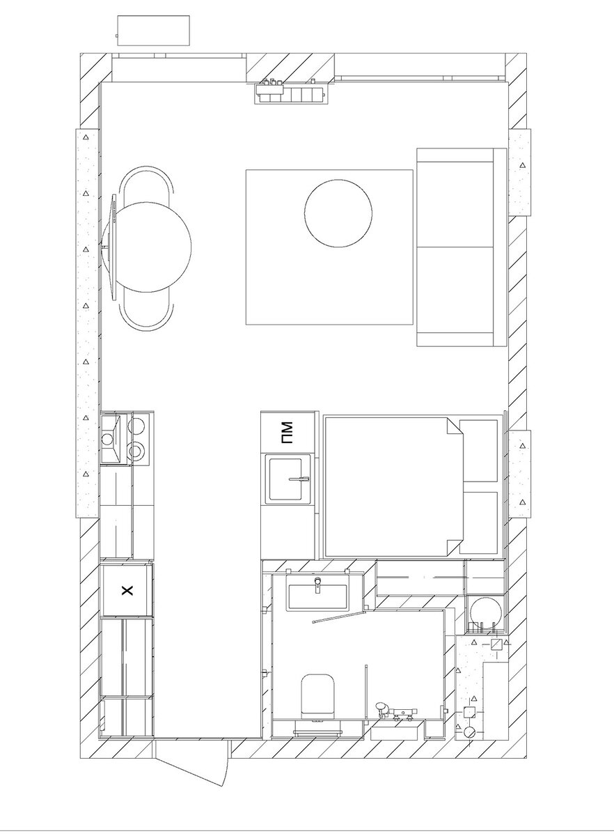
Хотя студия выглядит просторной, в ней много мест для хранения.

Площадь 30 кв.м.

Дизайн интерьера Елена Фатеева
Leave a Comment