
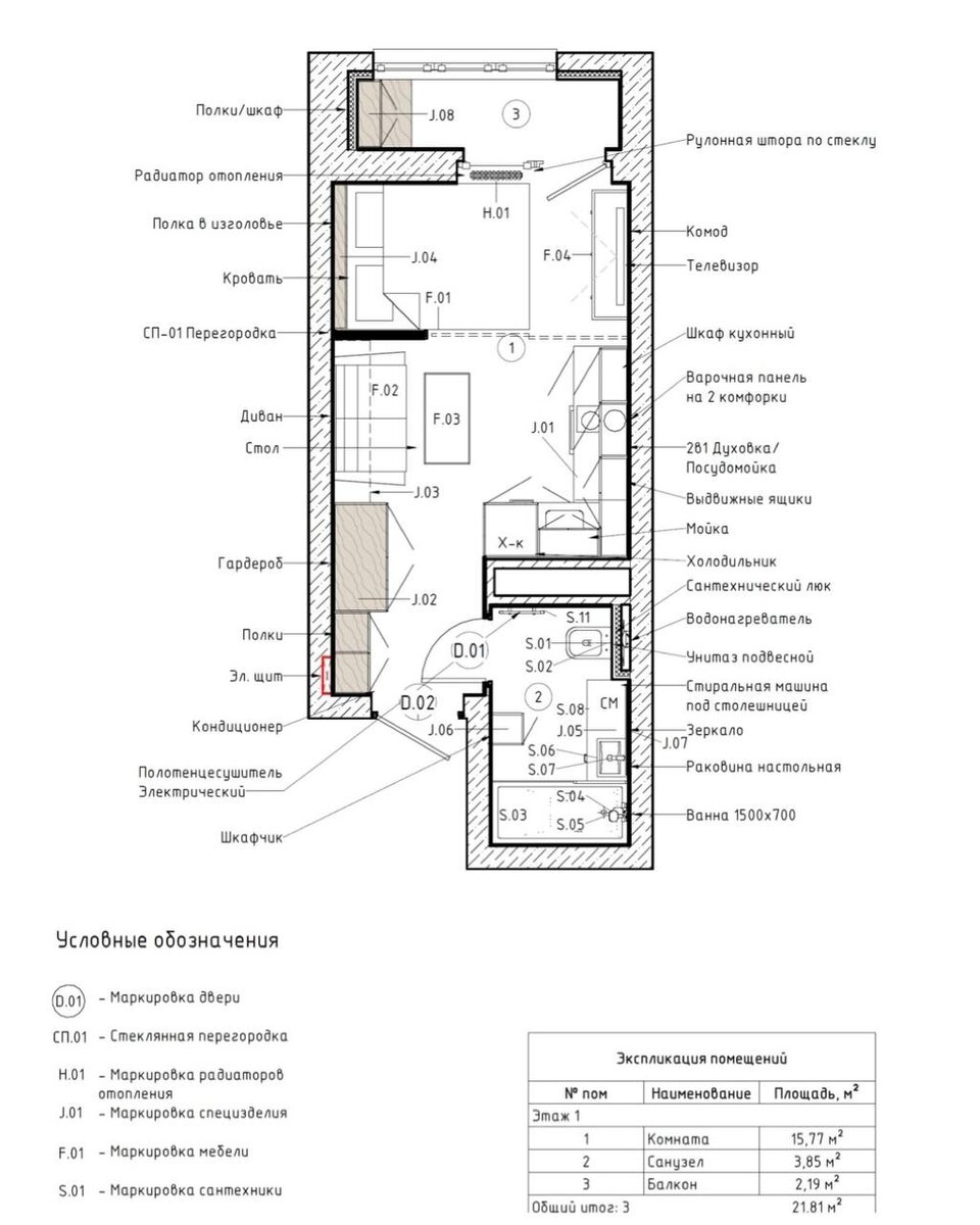
В вытянутой прямоугольной комнате площадью 15,8 кв.м. спальню и кухню-гостиную зонировали раздвижной стеклянной перегородкой.
Площадь 19,6 кв.м (21,8 кв.м с лоджией).
Дизайн интерьера Елена Петрачева

В вытянутой прямоугольной комнате площадью 15,8 кв.м. спальню и кухню-гостиную зонировали раздвижной стеклянной перегородкой.
Площадь 19,6 кв.м (21,8 кв.м с лоджией).
Дизайн интерьера Елена Петрачева
Leave a Comment