
Хозяева этой трехкомнатной квартиры площадью 81 кв.м. живут здесь со своими двумя детьми и увеличение детской комнаты было для них приоритетом при «назревшем» ремонте.
Квартира, хоть и большая, но старой планировки:
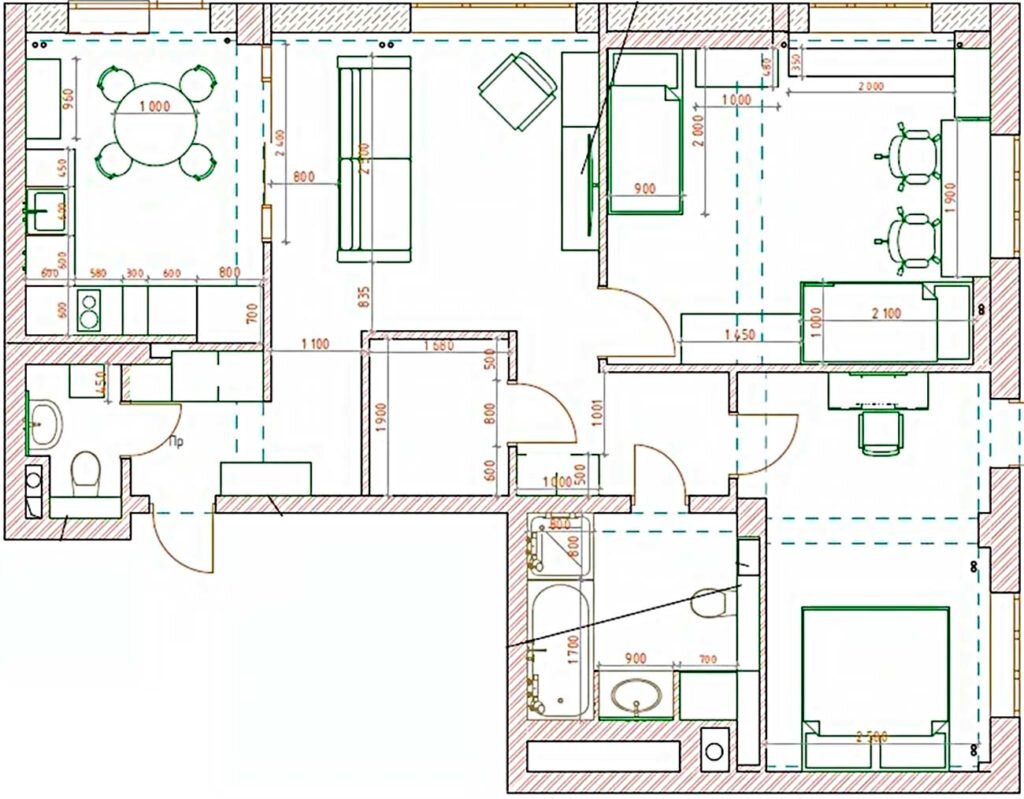
Самым неприятным являлся длинный, узкий, темный и абсолютно нефункциональный коридор.
Поэтому, первое, что просто » напрашивалось» — это убрать стену между гостиной и коридором, а за счет получившегося большого пространства увеличить площадь детской. Что и сделала дизайнер проекта Екатерина Усикова.
Это хорошо видно на схеме после перепланировки:
Спальня родителей осталась на своём месте и в прежних границах.
Она оформлена в классическом прованском стиле.

Заказчики хотели, чтобы интерьер выглядел свежо, светло, при этом они выбрали для цветовой палитры светлые цвета, с чуть более прохладными тонами.
Изящная белая мебель, светлые пастельные оттенки…
И, конечно, цветочный принт на обоях, лепнина на стенах, светлое дерево на полу, декор — все эти атрибуты указывают на романтичный вкус хозяев квартиры.
Главный цвет прихожей — белый, а главное её украшение — изящная банкетка и семейные фотографии на одной стене.
В связи с объединением гостиной с кухней, первоначальный вход на кухню из коридора был закрыт — здесь построили кладовую.
Дизайнер смогла «вписать» в новое пространство не только дополнительные складские помещения, но и небольшую гардеробную, которая никогда не бывает лишней, тем более в семье из 4-х человек.
Гардеробная немного выдвинута в гостиную:
Как видите, акцентным цветом в гостиной, как и в спальне родителей, выбран насыщенный синий.
Но, чтобы не перегружать пространство этим ярким цветом, диван, разделяющий зоны гостиной и кухни, выбран не полностью синим.
Весь остальной текстиль в этом открытом пространстве — в мягких нейтральных оттенках, как и сама кухня.
Благодаря появившейся после перепланировке более короткой стене, большие шкафы в кухонной зоне не видно из гостиной.
Здесь же разместили холодильник.
Если стиль гостиной можно скорее отнести к классическому, то кухня, благодаря стеклянному серванту, обеденной зоне, имеет легкие «намёки» на прованс.
Чтобы подчеркнуть и разграничить две функциональные зоны, обои на кухне имеют рисунок,
а в гостиной присутствует лепнина и молдинги.
Глава семьи нуждался в небольшом рабочем месте с компьютером, которое в результате было необычно «спрятано» в шкафу у телевизора в гостиной.
Вход в детскую ведет прямо из гостиной и расположен рядом с телевизионной стеной.
Детская оформлена в более выраженном прованском стиле.
Кроме пастельных цветов, особенного декора и характерной мебели,
Здесь много дерева типично «прованского» оттенка.
Детская комната для двух девочек хорошо продумана, эргономична и функциональна.
Грамотно использовано пространство для организации мест для учебы и хранения вещей.
Благодаря тому, что в этой комнате два окна, она и так очень светлая, а мягкие, теплые оттенки делают её ещё и очень уютной.
Для отделки стен во всей квартире использовались моющиеся краски с шелковистой поверхностью, что является хорошим выбором для семьи с детьми.
В квартире изначально было два санузла и хозяева не захотели «жертвовать» их площадью.
Туалет у входа и главный санузел рядом со спальней родителей остались также на прежнем месте.
Большая площадь ванной комнаты позволила сделать её максимально функциональной.
Кроме того, здесь удалось дополнительно разместить душевую кабину.
Яркие желтые акценты и более изящные металлические предметы были выбраны для оформления скромного, по площади, туалета у входа в квартиру.
Фото и дизайн интерьера Екатерина Усикова







Leave a Comment