
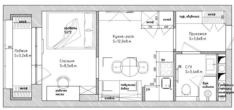
Интересные идеи в проекте студии площадью 27,5 кв.м. (с лоджией – 30,7 кв.м.).
В студии оформили проходную кухню-гостиную с милым диванчиком, а у окна — изолированную спальню.
Дизайн интерьера Студия Дениса Серова

Интересные идеи в проекте студии площадью 27,5 кв.м. (с лоджией – 30,7 кв.м.).
В студии оформили проходную кухню-гостиную с милым диванчиком, а у окна — изолированную спальню.
Дизайн интерьера Студия Дениса Серова
Leave a Comment