
Стиль — смешанный, превалируют элементы лофта и сканди.
Зонирование пространства произведено стеклянной перегородкой.
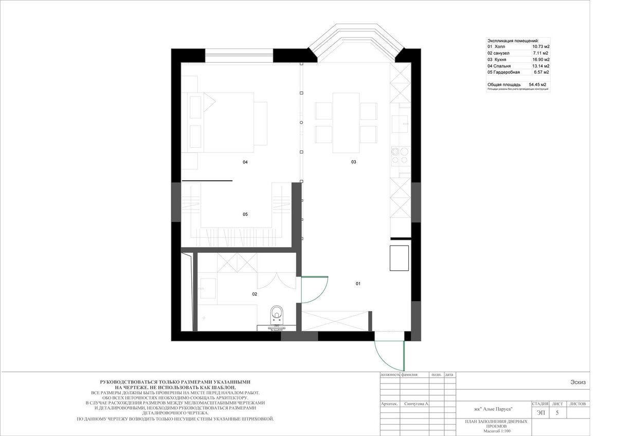
Из спальни можно попасть в довольно большую гардеробную.
Площадь 54 кв.м.
Локация — Москва.
Дизайн интерьера Антонина Синчугова.

Стиль — смешанный, превалируют элементы лофта и сканди.
Зонирование пространства произведено стеклянной перегородкой.
Из спальни можно попасть в довольно большую гардеробную.
Площадь 54 кв.м.
Локация — Москва.
Дизайн интерьера Антонина Синчугова.
Leave a Comment