
Молодая пара с ребенком приобрела эти новые апартаменты бизнес-класса для себя.
Помещение средних размеров — площадь 76 кв.м. и расположено в одной из новостроек Москвы.
Основная задача дизайнера и архитектора Татьяны Казанцевой состояла в том, чтобы оптимизировать планировку, откорректировать распределение всех необходимых зон и повысить функциональность жилья с помощью имеющихся в распоряжении дизайнера приемов.
Планировочные решения апартаментов были не вполне удачные — избыточное количество темных, бесполезных коридоров, отсутствие подсобных помещений и мест для организации хранения.
Поэтому дизайнеру пришлось многое переделывать, чтобы создать более комфортное пространство для жизни семьи.
Но, для начала дизайнер разработала проект, в котором стиль был обозначен, как близкий к минималистичному.
Хотя большинство пожеланий заказчиков были учтены, от некоторых из них пришлось отказаться.
Так, одним из главных условий хозяев было наличие гардеробной, что, к сожалению, по многим причинам, реализовать не получилось.
Чтобы компенсировать отсутствие гардеробной, зону, где изначально был коридор, дизайнер полностью отвела под хранение: около кухни появился вместительный шкаф для одежды, а у входа в детскую – шкаф для постельного белья и полотенец.
Вот как выглядели основные рендеры концептуального проекта этих апартаментов:
Прихожая:
Кухня:
Гостиная:
Спальня родителей:
Детская комната:
1-й санузел:
2-й санузел:
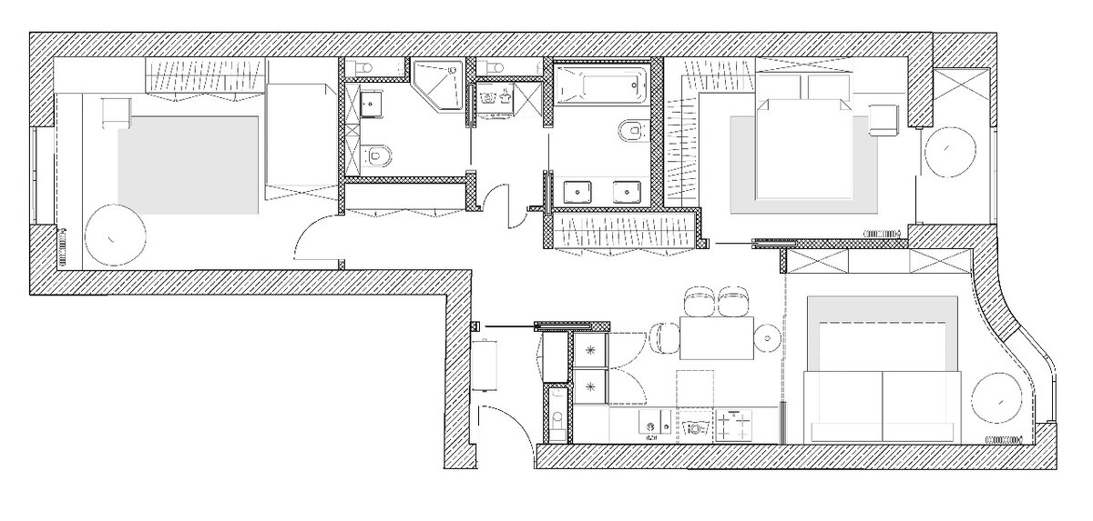
Планировка со схемой расстановки мебели:
Данный проект был успешно реализован и конечно, реальный интерьер получился не точной копией представленных рендеров, но об этом — в следующей статье, не пропустите…
Фото Addawards







Leave a Comment