Приятный бело-серый интерьер с прованскими мотивами. Преображение бывшей однушки - Декорри

Приятный бело-серый интерьер с прованскими мотивами. Преображение бывшей однушки

  • 15.06.2023

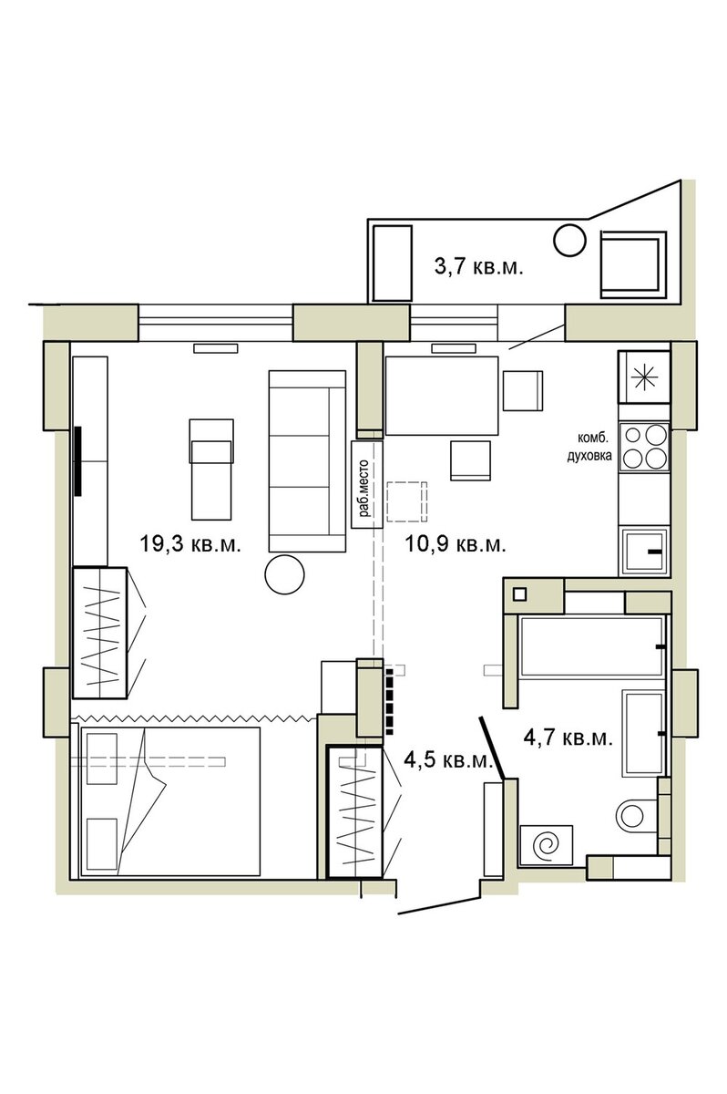
Площадь 39 кв.м (+ балкон).

Локация — Новосибирск.

Дизайн интерьера Анна Марковина
Leave a Comment