Уютно и атмосферно. Интерьер студии в классическом стиле с ретро-нотками. - Декорри

Уютно и атмосферно. Интерьер студии в классическом стиле с ретро-нотками.

  • 19.06.2023

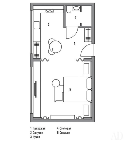
Площадь 34 кв.м.

Локация — Москва.

Дизайн интерьера Татьяна Миронова
Leave a Comment