
Молодая семья отремонтировала и при помощи дизайнера Елены Карасаевой оформила свою двухкомнатную квартиру площадью 51 кв.м. быстро, качественно и не слишком дорого.
Пара живет в панельной квартире с маленькой дочкой и кошкой. Они выбрали простой скандинавский дизайн интерьера, но с более красочным декором, чем обычно используется в этом стиле.
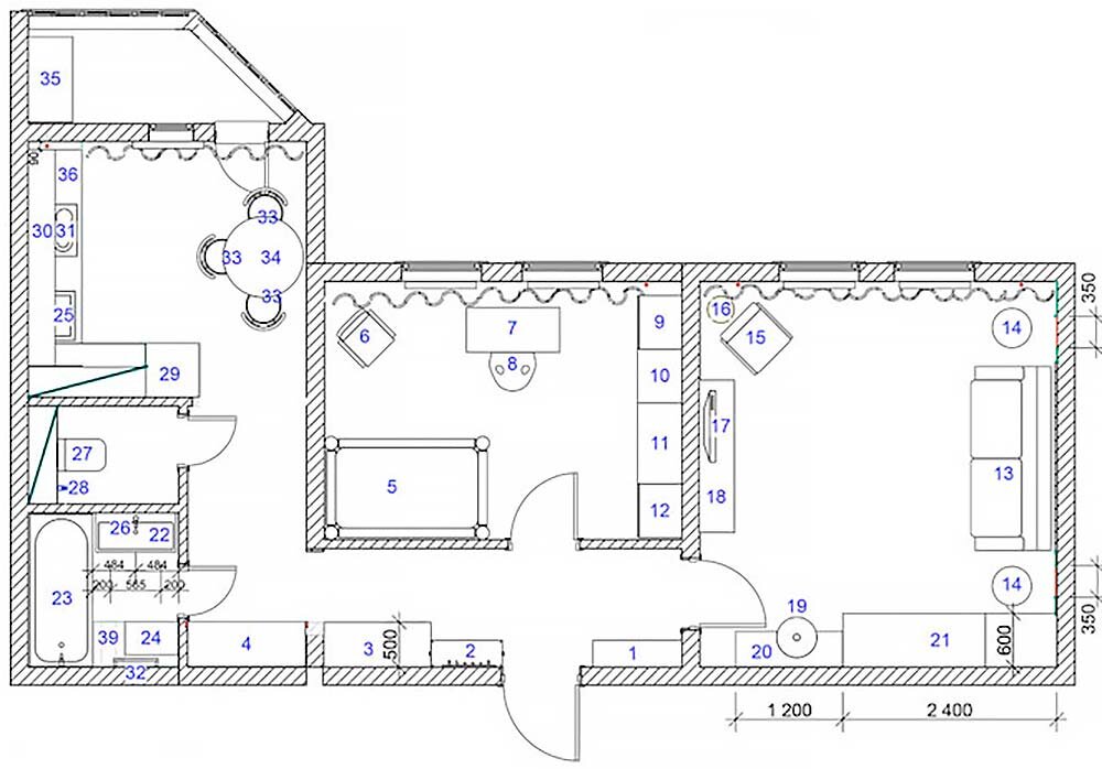
Поскольку в панельном доме о переносе несущих стен не могло быть и речи, то в существующей планировке решили изменить зоны.
В результате получили просторную прихожую, комфортную детскую комнату, практичную кухню с обеденной зоной и спальню-гостиную с туалетным столиком.
Общий цветовой мотив всей квартиры — нейтральные цвета с черно-белым контрастом аксессуаров. Исключение — более яркая кухня.
В целом, квартира оформлена без лишних деталей, хозяева придерживаются практичного подхода к домашней обстановке.
Прихожая — проста и лаконична, как по цвету, так и по минимуму предметов мебели и декора.
Коридор — узкий, поэтому здесь сделали выбор в пользу зеркальных дверей в шкафу-купе
и оригинального зеркала на стене.
Чтобы белый цвет не доминировал, для баланса, пол в прихожей и коридоре — теплого цвета натурального дерева.
Нейтральный интерьер гостиной (которая также является спальней родителей с диваном, который можно ночью превратить в кровать)
украшен фиолетовыми подушками, шторами
и сложным цветным узором на акцентной стене.
Чтобы максимально облегчить интерьер гостиной-спальни, туалетный столик установили узкий, невесомый, а стул к нему подобрали прозрачный.
Детская выглядит очень уютной и воздушной.
Цветовая палитра — сочетание теплого и более темного серого, белого и розового.
Вместительную мебель для хранения разместили у одной стены, у входа в комнату.
Тем самым противоположная сторона выглядит более просторно.
Здесь есть всё необходимое для комфорта и развития ребенка.
В то же время такой интерьер будет легко адаптировать к изменению потребностей ребенка по мере взросления.
Обеденная зона на кухне — белоснежна и лаконична.
Черный цвет только подчеркивает этот строгий посыл, а коричневый — немного утепляет эту зону.
Но, всё-таки общий характер кухни определяет небесно-голубой цвет кухонного гарнитура.
Черный цвет техники и фурнитуры,
акцентный пол объединяет,
а деревянная столешница — утепляет интерьер кухни.
Ванная и туалет — с серым фоном,
но также в контрастных оттенках черного и белого.
В качестве основного украшения выбрана колоритная, очень модная плитка метро
и декор в желтых оттенках.
Яркий, привлекающий внимание черно-белый пол кроме кухни, ванной и туалета, уложен и на лоджии.
Планировка со схемой расстановки мебели:
Фото Елена Карасаева







Leave a Comment