Деревянные акценты и много мест для хранения. Проект студии 22 кв.м. с планом - Декорри

Деревянные акценты и много мест для хранения. Проект студии 22 кв.м. с планом

  • 12.12.2022

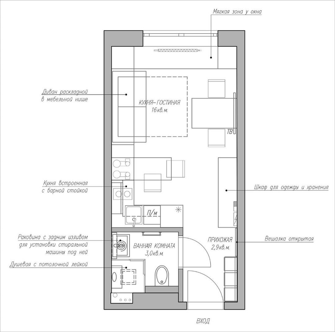
Концепт студии, где грамотно распорядились имеющейся и площадью и правильной формой жилого помещения.

Фото Pinterest.com

Leave a Comment