
Стиль минимализм становится всё популярнее. И это неудивительно.
Этот стиль, своей простотой, отсутствием украшений и сдержанными цветами соответствует всё более приоритетному тренду практичности.
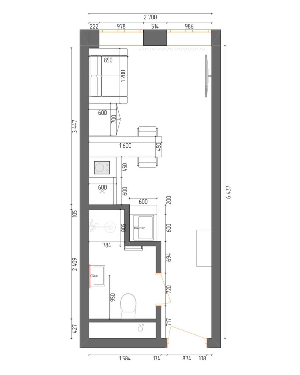
Вот и эту студию можно охарактеризовать словами «ничего лишнего»…
Дизайн интерьера Екатерина Расулов







Leave a Comment