
Молодая женщина приобрела эту квартиру в Москве для своей мамы — женщины средних лет с изысканным вкусом.
Квартиру подыскивали специально — чтобы мама поселилась рядом с жильем дочери и школой, в которую ходят дети и соответсвенно внуки мамы и бабушки.
Задумка была не просто оформить комфортный интерьер для немолодой женщины, но и предусмотреть возможность для занятий детей.
Бабушка будет забирать их из школы, они будут у неё обедать, играть и делать уроки. Затем мама будет приходить за детьми.
Таким образом какое-то время в этой небольшой квартире будут собираться три поколения семьи.
Воплотить эти пожелания в жизнь взялась дизайнер Наталия Хилова.
«У нас была ограниченная площадь и задача сделать жилье не только для бабушки, но и для внуков, которые часто остаются после школы, — делится деталями подготовки проекта дизайнер. — Поэтому требовалось организовать рабочее пространство, где дети могли делать домашнее задание, место для хранения игрушек и вещей, а также для отдыха и сна гостей. И, конечно, удобную спальню и кухню для хозяйки».
Так как квартра небольшая и имеет нестандартную конструкцию (одна из стен скошена), не обошлось без небольшой перепланировки. Реорганизация пространств коснулась в основном кухни и прихожей.
За счет прихожей увеличили площадь кухни ( в которой запланировали еще мини-зону гостиной), также в прихожую вынесли хозяйственный блок — слева, за распашными дверцами находятся стиральная и сушильная машины, а также бойлер.
Саму кухню передвинули к окну с выходом на лоджию.
На неё у дизайнера были особые планы — здесь должна расположиться обеденная зона
и место для занятий детей.
Чтобы не нарушать закон, лоджию отделяет перегородка из стекла и металла.
Для утепления лоджии установили напольный конвектор со стороны кухни.
Обустройство кухни-гостиной выглядит очень эстетично и аккуратно.
При этом кухня прекрасно оборудована техникой и новейшими системами хранения.
Белый и голубой цвета гармонично сочетаются с формами кухонного гарнитура.
Пространство между кухней и зоной гостиной делит двустроння мебель — со стороны кухни это нижние кухонные шкафы с рабочей поверхностью,
со сторны гостиной — открытые полки для книг и других мелочей.
Кухня и гостиная разграничены также напольным покрытием. В кухне это практичная плитка, в гостиной — ламинат.
Узорчатый пол с богатой расцветкой, безусловно, добавляет кухне шарма и оригинальности.
Под спальню хозяйки отдали единственную комнату, это самое большое помещение в этой квартире.
Скошенная стена позволила организовать при спальне отдельную гардеробную, что приблизило форму комнаты к правильному четырехугольнику и установить в торце дверь.
Таким образом спальню удалось сделать изолированной.
У кровати разместили письменный стол для хозяйки.
Напротив — телевизор, провода к которому, как и в гостиной, спрятали в кабель-канал в стене.
Вход в гардеробную закрыли дверью с двухсторонней зеркальной поверхностью. Для удобства у зеркала со стороны спальни повесили бра.
В гардеробной установили систему шкафов и ящиков, что позволяет хранить здесь много одежды,обуви и других вещей.
Что касается цветов, то женщине хотелось иметь не только удобную, но и красивую квартиру и была не против более насыщенных цветов.
Таким образом, задачей дизайнера стало создание уютного домашнего пространства, в котором помимо функциональности не было бы недостатка в интересных, красивых элементах.
Так, кухня-гостиная оформлена в свежей цветовой гамме. Её цветовая палитра достаточно насыщенна, а в интерьере есть много интересных элементов.
Белый и синий цвета привносят свежесть в интерьер и подчеркивают его утонченный характер.
Элегантно смотрятся черные акценты — фурнитура кухонного гарнитура и лофт-перегородка на ложию.
О стиле получившегося интерьера можно сказать, что это скорее нео-классика, где светлые стены и лепнина гармонично сочетаются с современной мебелью и выразительными акцентами.
Диванчик в зоне гостиной декорирован несколькими подушками и пледом в расслабляющей цветовой гамме.
Изящный декор, книги на полках, люстра, молдинги на стенах также обогащают элегантный декор мини-гостиной.
Спальня небольшая, но есть в ней несколько деталей, которые привлекают внимание.
Во-первых, это роскошное изголовье кровати и фигурная отделка стен.
Во-вторых — красивый декор, который в сочетании с текстилем теплых оттенков придают обстановке успокаивающий и стильный характер.
Бело-голубая прихожая выглядит светлой и вдохновляющей. На полу — такая же узорчатая плитка, как и в кухне. Под керамогранитом — теплый пол.
У входа в квартиру дизайнер разместила зеркало и пуф, на который можно присесть.
Напротив — шкаф для верхней одежды. Рядом — скамья обувница и настенная вешалка с полкой. Всё — черного цвета.
Ванная комнвта — в такой же цветовой гамме.
Благодаря изготовлению мебели на заказ (как и для других помещений), в ванной удалось разместить достаточно много шкафов.
Коммуникации закрыли коробом из гипсокартона, а натяжной потолок покрасили в цвет стен.
Для белого умывальника был выбран лаконичный смеситель, который подчеркивает элегантность этого интерьера.
Нужно отдать должное дизайнеру за этот проект. Во первых, благодаря заказу мебели под размер и удачному использованию планировочных особенностей квартиры, ей удалось создать очень фунционально-разноплановое пространство.
А во вторых — за отлично подобранную цветовую палитру. В оформлении квартиры гармонично сочетаются более теплые цвета стен и холодные и яркие оттенки мебели, декора.
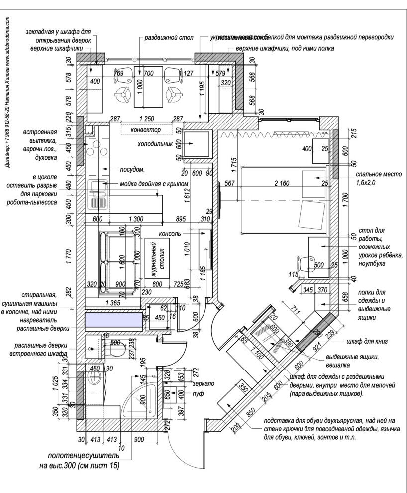
Планировка и схема расстановки мебели:
Дизайн интерьера Наталия Хилова Фото Сергей Некрасов







Leave a Comment