
Эта двухкомнатная квартира площадью 55 кв.м. принадлежит молодой женщине и находится в одном из спальных районов Москвы.
Квартира панельная, из старого жилого фонда, серии ИП-46М. Ремонт здесь не делали с начала 90-х годов, так что перед дизайнером Миленой Яничкиной стояла задача ремонта и полного преображения интерьера.
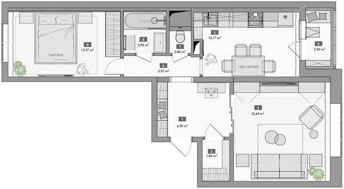
В квартире две комнаты и кухня с выходом на лоджию.
В прихожей квадратной формы есть небольшая кладовка.
В большой комнате обустроили гостиную, а во второй комнате, соответственно, разместили спальню.
Главные пожелания заказчицы заключались в том, что она хотела бы иметь спокойный интерьер, в котором можно отдохнуть и иногда поработать, а также много мест для хранения различных вещей.
Площади более чем достаточно для одной хозяйки, поэтому о перепланировке даже не думали. Впрочем, бетонные несущие стены все равно не позволили бы это сделать.
Правда, удалось немного видоизменить одну ненесущую стену — расширили вход в гостиную из прихожей. В получившийся больший проем установили высокую раздвижную перегородку из стекла. Это не только сделало интерьер более эффектным, но и темный холл сразу стал светлее и уютнее.
Особое внимание было уделено организации хранения.
В прихожей установили шкаф для верхней одежды, а рядом — сиденье с ящиками внизу.
В кладовой также есть места для хранения — полки и ящики для одежды, обуви и сумок.
В гостиной напротив дивана установили стеклянные шкафы — сюда поместили книги хозяйки коллекцию керамики и другие мелочи. Также внизу есть закрытые шкафчики для вещей.
На кухне — вместительный кухонный гарнитур с необходимой техникой. Часть верхних шкафов также сделана со стеклянными фасадами, чтобы на них можно было выставить красивую посуду.
В спальне установлен большой шкаф для одежды, для визуального расширения пространства фасады мебели подобраны под цвет стен.
Что касается отделки, то стены покрашены и украшены лепниной, что придало гостиной более торжественную атмосферу и классический вид.
По цветовой палитре дизайнер предложила максимально нейтральные оттенки, которые представлены, в основном, в бежевых и теплых серых тонах.
Дополнительные цвета также естественны, например, благородный зеленый цвет кресла и песочный цвет тахты.
Цветовая палитра спальни основана на серых и жемчужных оттенках. Стены выкрашены в более холодный цвет, дающий комнате больше воздуха.
Для пола в комнатах была выбрана инженерная деревянная доска, а для холла и кухни — крупный керамогранит с мраморным рисунком.
Из-за подвесного потолка немного уменьшилась высота стен, поэтому, чтобы оставшиеся 2,5 метра казались выше, молдинги под потолком покрасили в цвет стен.
На лоджии организован уголок для чтения с диванчиком, а благодаря и откидному столику здесь можно работать.
Смотрим, что получилось:
ва
Дизайн интерьераМилена Яничкина
Фото Евгений Кулибаба







Leave a Comment