
Приобретением маленькой студии в качестве первого жилья сейчас никого не удивишь.
Студии значительно дешевле однокомнатных квартир и для молодых людей, проводящих большую часть времени вне дома, это очень разумный выбор.
Вот и молодые хозяева этой квартиры, пара без детей, решили пока остановиться на студии.
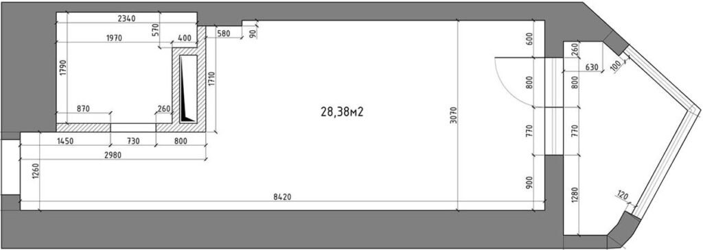
В этой новой квартире, узкой студии площадью 28,38 кв.м. с высотой потолков 2,7 м. и лоджией
они решили разместить все необходимые им функциональные зоны, но пришли в выводу, что самим сделать это оптимальным образом достаточно сложно.
Поэтому ребята обратились за помощью к дизайнерам из CubiqStudio, которые и разработали для них этот проект.
Они использовали каждый квадратный сантиметр этой скромной площади, хорошо продумали все мелкие детали, учли все пожелания заказчиков, при этом постарались сделать квартиру визуально не тесной и максимально функциональной.
А молодые люди хотели иметь светлый, удобный интерьер в скандинавском стиле, с достаточным количеством мест для хранения вещей.
В качестве отправной точки дизайнеры выбрали наличие удобной спальной зоны и хорошо оборудованной, функциональной кухни.
Что же получилось? Давайте смотреть…
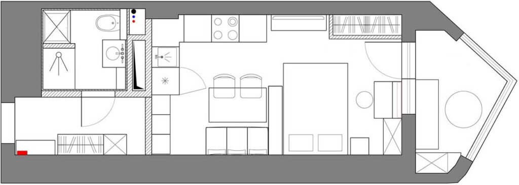
Начнем со спальной зоны, она расположена у единственного окна.
Рядом с ним дизайнеры разместили небольшое, но полноценное рабочее место
с застекленным шкафом для книг и документов.
У одной стены — платяной шкаф,
со вкусом встроенный у стены с телевизором.
Напротив разместили двуспальную кровать.
Монохромную палитру идеально дополняют и утепляют деревянные элементы.
Для зонирования пространства между спальней и кухней-гостиной использована невысокая перегородка стеллажного типа.
С другой стороны перегородки разместилась обеденная группа
и милый, уютный диванчик.
Стильная кухонная мебель с белыми верхними шкафами и серыми фасадами внизу отлично вписывается в этот интерьер.
Чтобы максимально использовать пространство над входом в прихожую, наверху разместили дополнительные антресоли в цвет шкафа со встроенным холодильником.
Наверху есть два ряда шкафов для максимального использования пространства.
Лоджия была отдана под жилую зону .
Там оборудована приятная зона отдыха
с практичными шкафчиками и полками.
Прихожую дизайнеры оформили в белом цвете, т.к. это помещение меньше всего освещено и совсем крохотных размеров.
Кроме того, оно узкое, поэтому все предметы мебели разместили у одной стены.
Шкаф, очень колоритный по форме,
вместе с яркой плиткой пэчворк на полу отвлекают внимание от размеров помещения.
Спокойная цветовая палитра присутствует и в ванной комнате.
Единственным ярким элементом здесь является синяя мебель под раковиной
и контрастный узорчатый пол.
Ванная и туалет совмещены в одной комнате,
но рядом с душевой кабиной есть место для стиральной машины, а над ней — большой закрытый шкаф.
Стиральная машина прячется за дверцами шкафа, унитаз крепится на стене.
План и схема расстановки мебели после ремонта:
Фото и дизайн интерьера: CubiqStudio







Leave a Comment