
Гостиная здесь получилась проходной, зато удалось найти место даже для гардеробной.
Стиль — скандинавский.
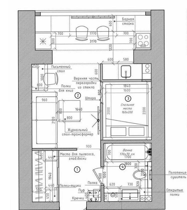
Площадь 29,6 кв.м (кухня-гостиная 16,6 кв.м, спальня и санузел по 4 кв.м, прихожая 5 кв.м).
Дизайн интерьера Татьяна Реслер

Гостиная здесь получилась проходной, зато удалось найти место даже для гардеробной.
Стиль — скандинавский.
Площадь 29,6 кв.м (кухня-гостиная 16,6 кв.м, спальня и санузел по 4 кв.м, прихожая 5 кв.м).
Дизайн интерьера Татьяна Реслер
Leave a Comment