Кухня в холле, спальня на месте кухни и красочные акценты. Оригинальная перепланировка и декор бывшей однушки - Декорри

Кухня в холле, спальня на месте кухни и красочные акценты. Оригинальная перепланировка и декор бывшей однушки

  • 01.06.2023
  • Главная
  • Ванная комната
  • Кухня в холле, спальня на месте кухни и красочные акценты. Оригинальная перепланировка и декор бывшей однушки

Стиль интерьера — микс нео-классики с лофтом.

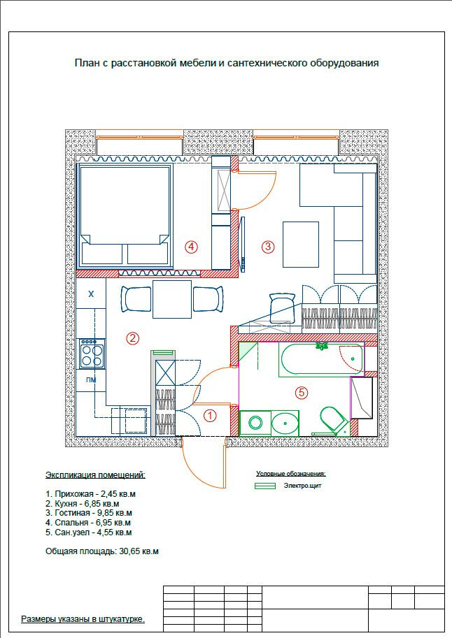
Площадь почти 31 кв.м.

Дизайн интерьера Архитектурное бюро «Тор-Ард»

Leave a Comment