
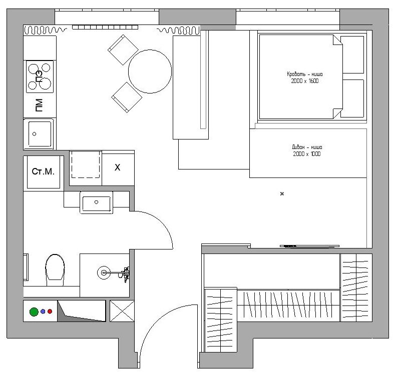
На небольшой площади получили простор и хороший функционал за счет того, что отказались от гостиной в пользу гардеробной.
Стиль — минимализм.
Площадь 35 кв.м.
Локация — Москва.
Дизайн интерьера Виктория Волкова

На небольшой площади получили простор и хороший функционал за счет того, что отказались от гостиной в пользу гардеробной.
Стиль — минимализм.
Площадь 35 кв.м.
Локация — Москва.
Дизайн интерьера Виктория Волкова
Leave a Comment