
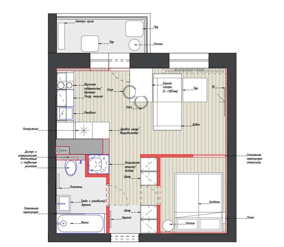
Проект перепланировки однокомнатной квартиры в открытое пространство.
Стиль- минималистичный модерн.
Площадь 37 кв.м.
Локация — Москва.
Дизайн интерьера Виктория Кудрявцева

Проект перепланировки однокомнатной квартиры в открытое пространство.
Стиль- минималистичный модерн.
Площадь 37 кв.м.
Локация — Москва.
Дизайн интерьера Виктория Кудрявцева
Leave a Comment