
Однотонное пространство разделено стеклянной перегородкой с черным профилем.
Стены декорированы молдингами.
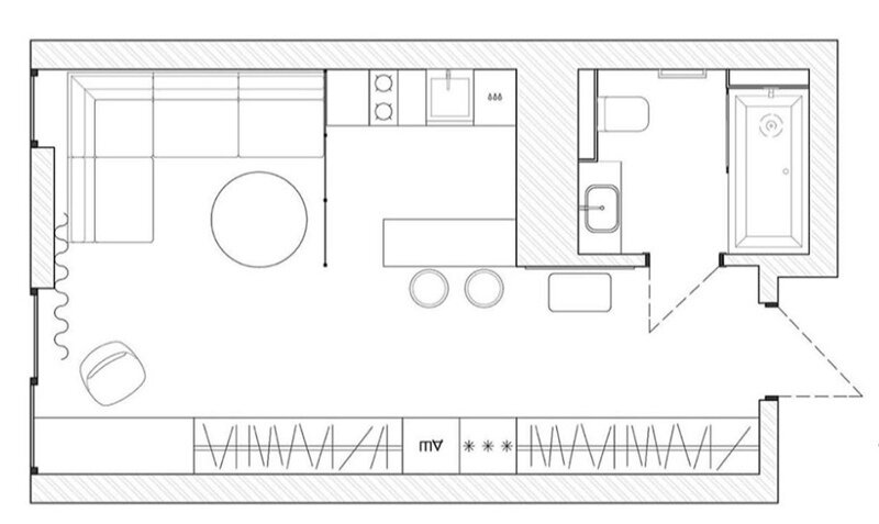
Площадь 30 кв.м.
Дизайн интерьера студия INNOI design

Однотонное пространство разделено стеклянной перегородкой с черным профилем.
Стены декорированы молдингами.
Площадь 30 кв.м.
Дизайн интерьера студия INNOI design
Leave a Comment