
Для более рационального использования пространства дизайнеры предложили установить трансформируемое спальное место.
Диван здесь легко превращается в кровать.
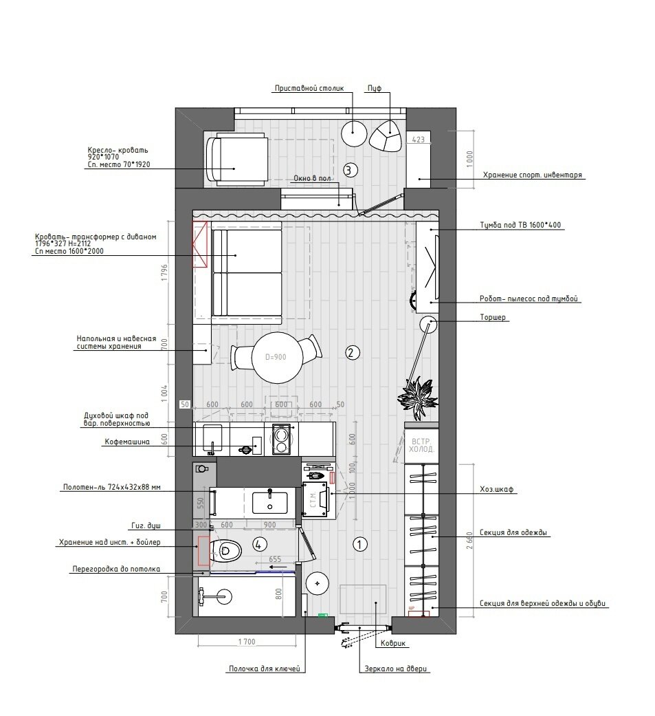
Площадь 29 кв.м.
Дизайн интерьера Студия А+Б

Для более рационального использования пространства дизайнеры предложили установить трансформируемое спальное место.
Диван здесь легко превращается в кровать.
Площадь 29 кв.м.
Дизайн интерьера Студия А+Б
Leave a Comment