
Эта квартира расположена в одном из новых ЖК Москвы.
Приобреталась квартира как евродвушка площадью 52,5 кв.м. и была свободной планировки — без возведенных застройщиком стен. Застройщик только обозначил ванную с санузлом, а также мокрую зону кухни.
Владелец — успешный молодой человек, который много времени проводит на работе, но мечтает о современном и комфортном доме, наполненном уютом, светом и воздухом.
Из функциональных зон он обязательно хотел бы иметь спальню, гостиную, места для работы и занятий спортом. Но главное желание — просторна кухня, так как он любит готовить.
За воплощения в реальность своих желаний молодой человек обратился к дизайнеру Анастасии Григорьевой.
Из общения дизайнер поняла, что заказчик имеет тонкий вкус и кроме функциональности и уюта, хотел бы иметь современный и неизбитый интерьер.
«Нужен был интерьер, отвечающий стилю жизни молодого человека, но не хотелось, чтобы эта квартира была похожа на миллион других серо-бежевых интерьеров», — рассказала автор проекта..
Дизайнер постарался максимально использовать имеющееся пространство и нашел место для каждой функциональной зоны — она разработала интерьер, который идеально соответствует стилю жизни хозяина.
Условно квартиру как бы поделили на две части — жилую и вспомогательно-бытовую.
Одну половину квартиры занимают прихожая,
совмещенный с ванной санузел
и большая гардеробная (9кв.м.).
Она также служит постирочной и местом для занятий спортом. Здесь установлено большое настенное зеркало и есть для этого достаточно места.
В другой половине квартиры обустроены спальная зона,
а также приличных размеров кухня, внутри которой выдели небольшое место для гостиной с диваном.
Кухонный гарнитур, оборудование, обеденная группа — всё полноценных размеров, как и хотел хозяин.
В приватной зоне помимо двуспальной кровати и шкафа
также создано рабочее место.
Спальню при необходимости можно полностью отделить от кухни-гостиной раздвижной стеклянной перегородкой.
Таким образом сохраняется ощущение простора и открытости пространства.
Декор лаконичный, но очень элегантный, с элементами современного шика.
Освещение в этом интерьере играет особую роль, так как является как функциональным, так и декоративным.
В квартире встроенные в подвесной потолок точечные светильники.
В зоне гостиной они утоплены в линейные профили, так они дополнительно зонируют помещение.
Подвесные светильники установили над обеденным столом
и по обеим сторонам кровати.
Для отделки стен, в основном, выбирались светлые краски, но, также использовались и более выразительные акценты.
Например, фотообои с эффектной графикой за кроватью,
гипсовые панели в зоне рабочего стола
и панели под дерево на ТВ-стене
вносят особую «изюминку» в оформление.
Кухня, гостиная и спальня имеют в декоре текстуру дерева и мебель, текстиль в благородных оттенках.
В прихожей круглый потолочный светильник и встроенная подсветка в зеркало за консольным столиком подчеркивают и украшают эту зону.
В ванной комнате для дополнительного освещения — подвесы над зеркалом.
В гардеробной предусмотрели подсветку шкафов и зеркала.
В ванной использована крупная плитка в сочетании с краской глубокого бирюзового цвета.
Стену за ванной украсили плиткой с узором в японском стиле.
Пол покрыт каменным керамогранитом во всех комнатах, в том числе и в гостиной, это сделано по желанию хозяина.
В спальне и кухне-гостиной — керамогранит под дерево.
Серый керамогранит с эффектом металла, выбранный для гардеробной, идеально сочетается с настенным покрытием с эффектом бетона.
В ванной и прихожей— керамогранит под светлый мрамор.
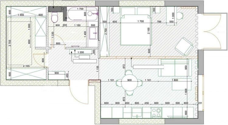
А вот и финальный план этой квартиры:
Дизайн интерьера Анастасия Григорьева







Leave a Comment