
Молодой человек живет на три страны и здесь проводит несколько месяцев в году.
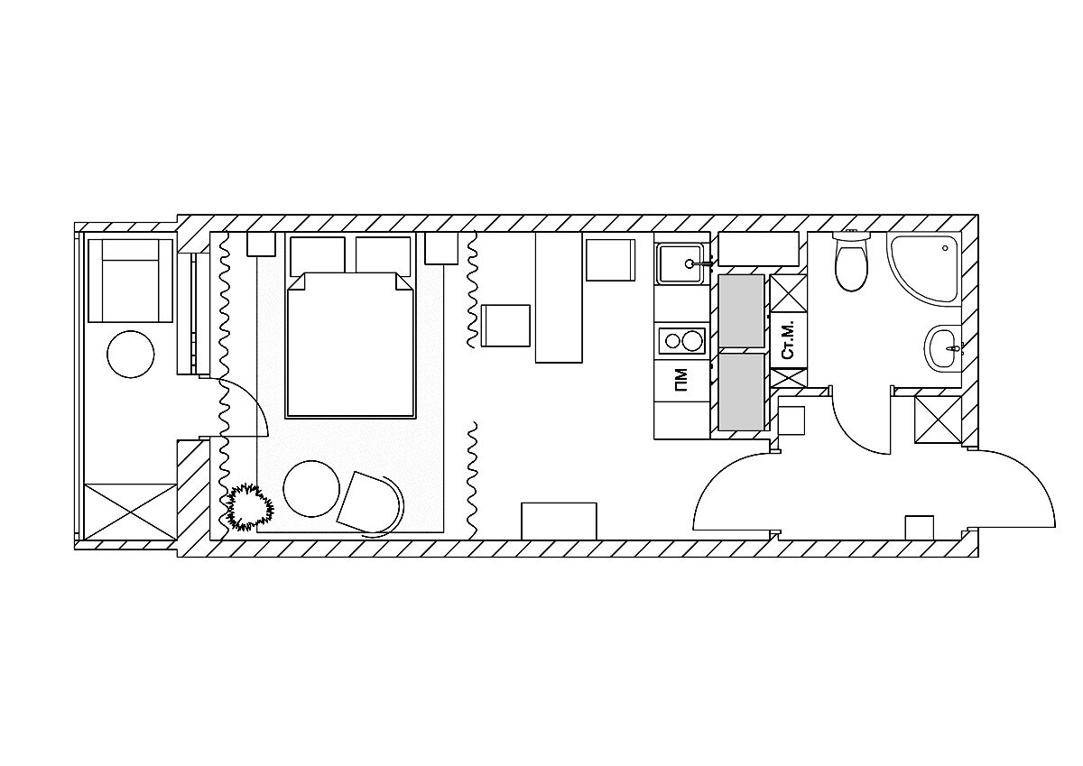
Полноценную спальню разместили у окна,
от гостиной мужчина отказался, а кухню отделили плотными двусторонними шторами.
Небольшой уголок для отдыха оборудовали на лоджии.
Площадь 24 кв.м.
Локация — Санкт-Петербург.
Дизайн интерьера Аркадий Япаров.







Leave a Comment