Открытая планировка и спальня на подиуме. Интерьер однушки в стиле модерн с нотками сканди - Декорри

Открытая планировка и спальня на подиуме. Интерьер однушки в стиле модерн с нотками сканди

  • 01.07.2023
  • Главная
  • Ванная комната
  • Открытая планировка и спальня на подиуме. Интерьер однушки в стиле модерн с нотками сканди

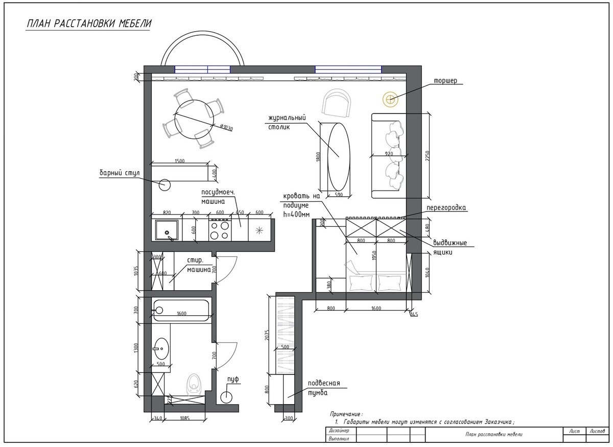
Площадь 49,5 кв.м.

Локация — Казахстан.

Дизайн интерьера Лаура Баимбетова и Алия Ибраева
Leave a Comment