
Хозяева этой квартиры — супружеская пара, ожидающая рождения ребенка.
О них можно сказать, что они объездили много городов и стран, где подолгу жили и имели возможность хорошо познакомиться с традициями и вкусами людей разных национальностей.
Вероятно, всё это повлияло и на их собственные предпочтения и свою квартиру они купили в историческом центре Санкт-Петербурга.
По стилистике хозяева хотели видеть у себя современную американскую классику с «петербуржским налетом» в нейтральных оттенках.
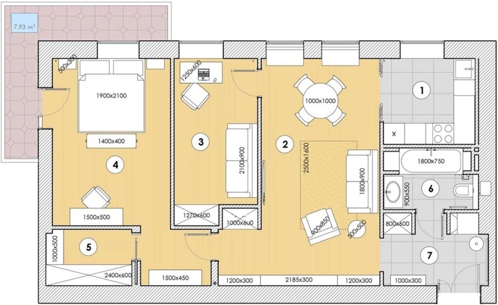
Квартира большая (75 кв.м.), с высокими полками и 6 окнами, но при этом имеющая и ряд отрицательных характеристик.
Это старые стены и коммуникации, которые необходимо было полностью поменять, но главное — 5-ть из 6-ти окон выходят на одну сторону.
В связи с этими особенностями квартиры, дизайнер Наталья Комова сначала предполагала сделать модную и торжественную анфиладную планировку с проходными комнатами.
Но, учитывая пожелания заказчиков, она от этого отказалась и планировала пространство исходя из необходимости сделать комнаты изолированными. Исключением стала только гостиная-столовая.
Это потребовало существенных перепланировок и их согласование заняло достаточно много времени.
В результате комнаты получились вытянутыми и это пришлось корректировать расстановкой мебели и акцентами, отвлекающими внимание от не совсем правильных пропорций помещений.
От узкого коридора избавились благодаря интересным планировочным решениям. Например, торцевую его часть превратили в гардеробную, а в зоне гостиной объединили эти два пространства.
При проектировании всех систем хранения в квартире сделана ставка на встроенные шкафы.
Размещение шкафов было тщательно продумано, чтобы обеспечить к ним удобный доступ, а их внутреннее наполнение очень практично, чтобы максимально использовать все современные возможности.
Каждый шкаф был разработан и сконструирован по индивидуальному заказу.
«Хозяевам очень понравилось решение с двусторонней нишей: со стороны детской мы вписали в неё шкаф, со стороны прихожей — хозблок для крупного инвентаря», — делится дизайнер.
Мягкая мебель очень элегантна, а обивка из бархата приятна на ощупь, привнося тепло в пространство.
Хозяева любят животных и у них есть любимый питомец благородной породы, который смотрится в таком интерьере очень органично.
Во время ремонта были использованы высококачественные натуральные материалы.
В облицовке много мрамора, аксессуары в классическом стиле и полы с ярким рисунком придают интерьеру оригинальность и индивидуальность.
Стены были окрашены в приятные нейтральные оттенки, чтобы создать благородный фон для дорогой мебели.
Хотя в некоторых местах использовались достаточно темные цвета, благодаря огромным окнам в комнатах и стеклянным зеркальным межкомнатным дверям, доходящим до потолка, квартира получилась не только светлой, но и просторной.
В прихожей и ванной комнате пол покрыт паркетом уникального цвета, что придает этому спокойному интерьеру динамизма и выразительности.
Чтобы подчеркнуть благородство месторасположения квартиры, были использованы стилизованные под винтажные, предметы декорирования.
Кухня осталась на своём месте и ее отделили от гостиной раздвижными перегородками.
Кухня полностью заполнена шкафами до самого потолка, что позволило рационально распорядиться высотой стен и подчеркнуть эту впечатляющую особенность квартиры.
Базовые предметы быта, кухонной утвари, которые используются каждый день, были помещены в нижнюю часть, шкафов, а не часто используемые вещи — в более труднодоступные и высокие шкафы.
Чтобы компенсировать небольшую площадь кухни, была выбрана светлая мебель в цвет стен.
Обеденную зону вынесли в гостиную,
но мраморная отделка стола объединяет её с кухней, несмотря на перегородку.
Узкие высокие окна гостиной украшают элегантные римские шторы, а отопительные батареи
и двери покрашены в благородный темно-серый цвет.
Гостиная оформлена в традиционном американском стиле с элементами арт-деко.
Базовый серый цвет с зеленоватым тоном отлично оттеняют полы винного цвета и фиолетовый пуф.
Холодные цвета в гостиной очень гармонично дополнены более теплыми, что делает интерьер более уютным.
Умелое сочетание холодных и теплых цветов можно увидеть и в спальне.
Но она уже оформлена в преобладании более теплых — бежевых оттенков.
Хотя всё выглядит достаточно просто, детали выдают высокое качество материалов и отделки.
Особенностью спальни являются два угловых окна и вытянутость формы комнаты.
Поэтому самым правильным решением стала установка кровати изголовьем к окнам.
Благодаря такому положению спальня выглядит более квадратной и освобождается место для банкетки и туалетного столика.
Посмотрите, как отлично сочетаются серый и коричневый цвета в этой спальне!
Изначально (это видно на схеме), в третьей комнате планировалось разместить кабинет.
Но жизнь, а затем и дизайнер это «переиграли».
Детскую оформили в более светлых оттенках — серых и белых.
Высокий шкаф с зеркальными дверями делает её ещё более воздушной и просторной.
Дизайн интерьера Наталья Комова Фото: Юрий Гришко







Leave a Comment