Проект квартиры открытой планировки для молодой девушки в Санкт-Петербурге - Декорри

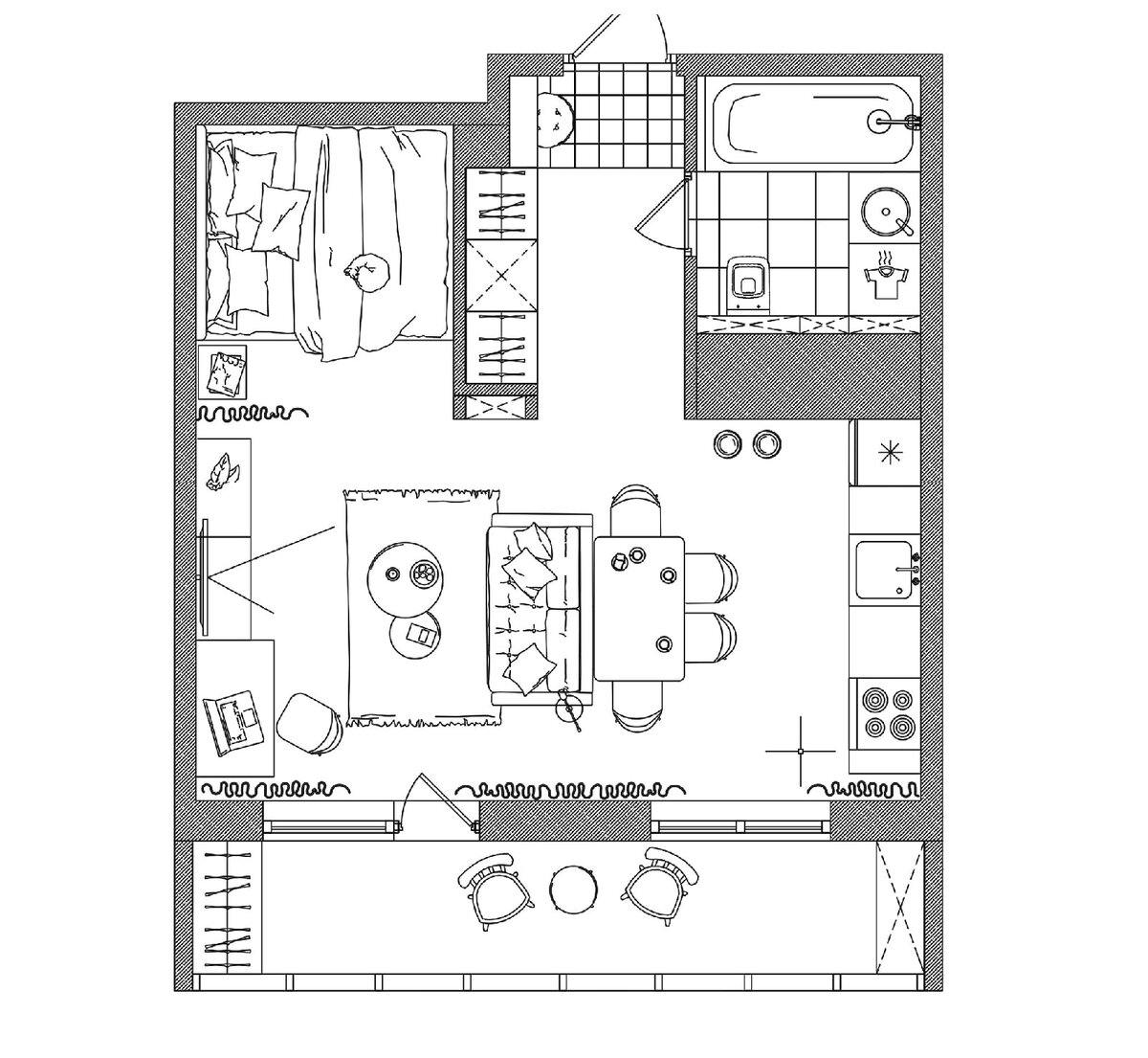
Проект квартиры открытой планировки для молодой девушки в Санкт-Петербурге

  • 16.01.2023

Приятный светлый интерьер в жизнерадостной цветовой гамме.

Площадь 35 кв.м. 

Дизайн интерьера Анна Алпатова

Leave a Comment