
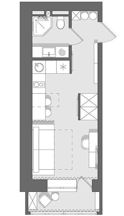
Белый скандинавский интерьер, «утепленный» деревом и бежевым цветом. Черные прикосновения призваны подчеркнуть и оттенить красоту белого цвета.
Дизайн интерьера Марианна Катаева

Белый скандинавский интерьер, «утепленный» деревом и бежевым цветом. Черные прикосновения призваны подчеркнуть и оттенить красоту белого цвета.
Дизайн интерьера Марианна Катаева
Leave a Comment