
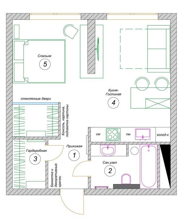
Площадь 42 кв.м.
Стиль нео-классика.
Дизайн интерьера Марина Козлова
Вас может заинтересовать
Свежие статьи
- Стирально-сушильные машины Indesit: удобство, экономия и эффективность
- Сушильные машины Hotpoint: инновации, забота о ткани и удобство в использовании
- Пылесосы Grundig: мощность, инновации и забота о чистоте
- Кухонные плиты Beko: качество, доступность и инновации
- Галереи: Интерьеры гостиных, напоминающих о лете, море и пляже

- Просторная квартира с панорамными окнами в стиле ультра-модерн

- Для мамы. Неповторимый интерьер, который хочется рассматривать

- Изысканные детали и золотые акценты. Элегантная кухня-гостиная в молочно-кремовых тонах




Leave a Comment