
Отказ от сплошной стены между комнатой и кухней — самый простой вариант сделать квартиру просторнее и разместить еще одну функциональную зону.
В данном случае — спальную.
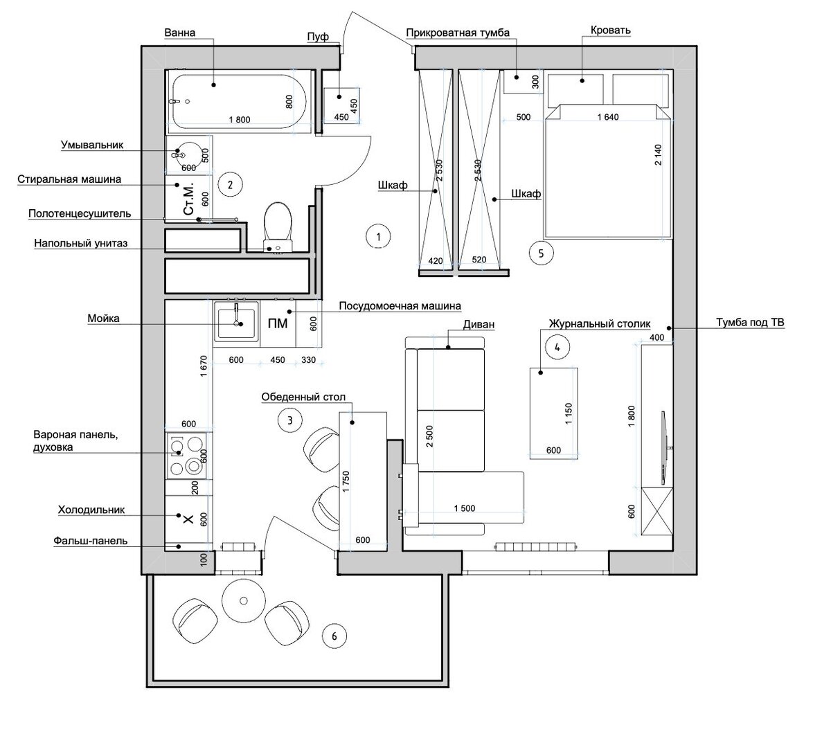
Площадь 41,5 кв.м.
Дизайн интерьера А. Короткова

Отказ от сплошной стены между комнатой и кухней — самый простой вариант сделать квартиру просторнее и разместить еще одну функциональную зону.
В данном случае — спальную.
Площадь 41,5 кв.м.
Дизайн интерьера А. Короткова
Leave a Comment