
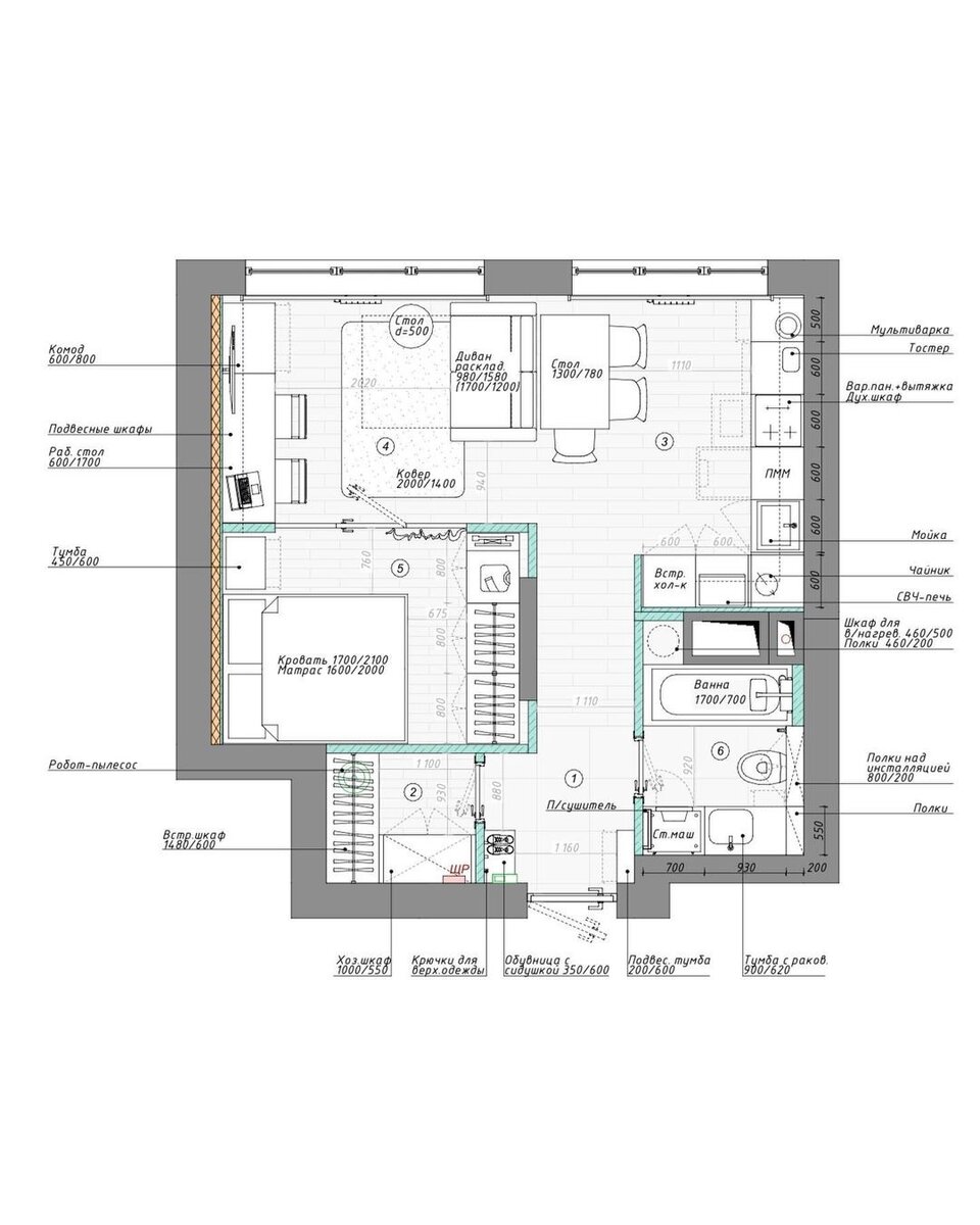
Благодаря открытому пространству кухни-гостиной у двух окон, квартира смотрится светлее и просторнее.
В спальню (без окна) свет проникает через стеклянную перегородку.
Кроме шкафа в спальне, в прихожей оборудовали небольшую гардеробную.
Площадь 40 кв.м.
Дизайн интерьера Студия А+Б







Leave a Comment