
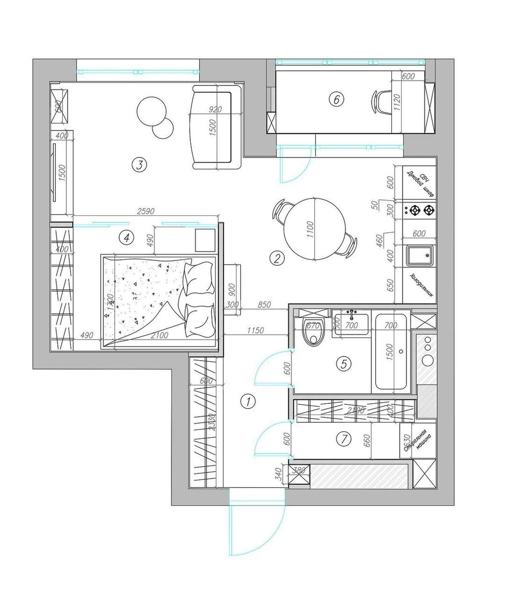
Концепт перепланировки и оформления однокомнатной квартиры.
Стиль интерьера — нео-классика.
Площадь 35,5 кв.м.
Дизайн интерьера Александра Гартке

Концепт перепланировки и оформления однокомнатной квартиры.
Стиль интерьера — нео-классика.
Площадь 35,5 кв.м.
Дизайн интерьера Александра Гартке
Leave a Comment