
Здесь можно рассмотреть элементы бохо, эко и этно стилей.
Отсутствие стен, большие окна и стеклянная перегородка создают эффект наполненности светом и воздухом.
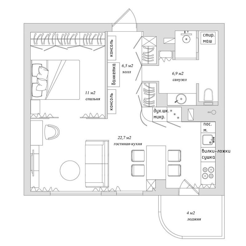
Площадь 47 кв.м.
Дизайн интерьера Александра Никулина.

Здесь можно рассмотреть элементы бохо, эко и этно стилей.
Отсутствие стен, большие окна и стеклянная перегородка создают эффект наполненности светом и воздухом.
Площадь 47 кв.м.
Дизайн интерьера Александра Никулина.
Leave a Comment