
Перед вами концепт студии с двумя вариантами зонирования кухни.
Заказчику предоставлен выбор: открытый стеллаж или реечная перегородка будут отделять кухню от зоны гостиной.
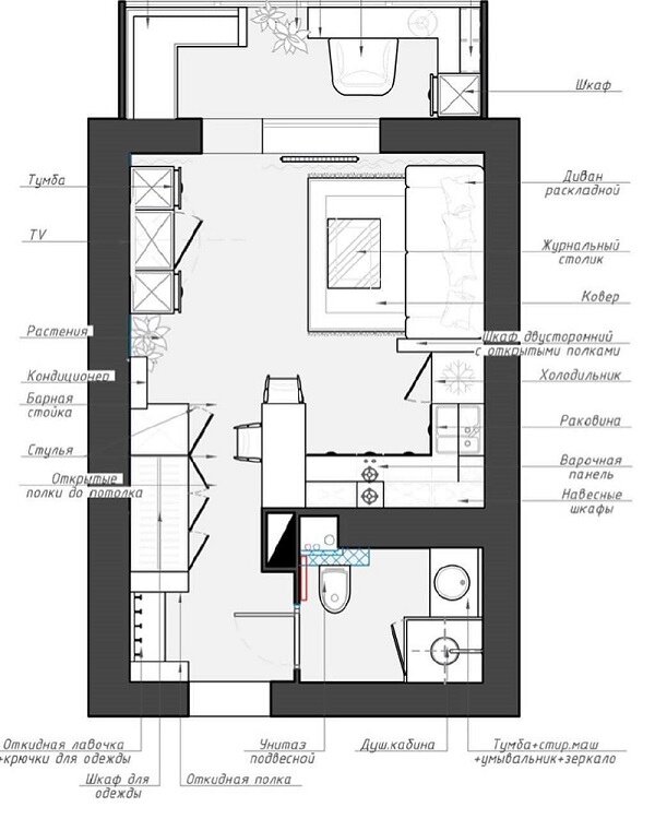
Площадь 28,5 кв.м.
Дизайн интерьера студия Emi Home

Перед вами концепт студии с двумя вариантами зонирования кухни.
Заказчику предоставлен выбор: открытый стеллаж или реечная перегородка будут отделять кухню от зоны гостиной.
Площадь 28,5 кв.м.
Дизайн интерьера студия Emi Home
Leave a Comment