
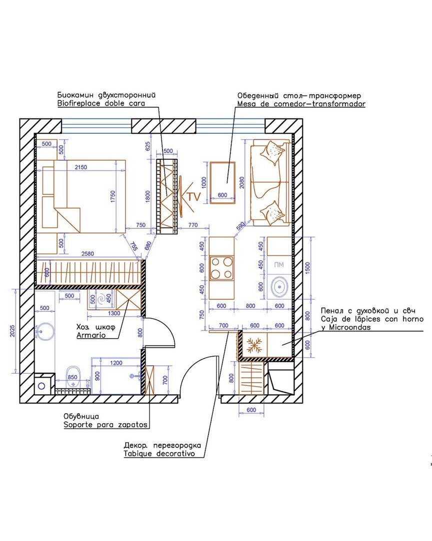
Бывшую однушку полностью преобразили — кухню отодвинули ближе к прихожей, за счет этого появилось место для мини-гостиной у окна.
Спальню отделили перегородкой со встроенным двусторонним биокамином.
Прихожая зонирована легкой перегородкой из дерева.
Площадь 38 кв.м.
Дизайн интерьера Татьяна Кучина и Мария Шушарова







Leave a Comment