
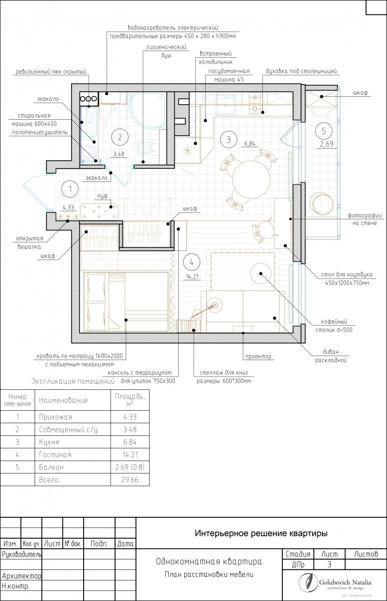
По результатам работы дизайнера получили просторный светлый интерьер с растительными акцентами.
Площадь 29 кв.м (+ лоджия).
Дизайн интерьера Наталья Голубович

По результатам работы дизайнера получили просторный светлый интерьер с растительными акцентами.
Площадь 29 кв.м (+ лоджия).
Дизайн интерьера Наталья Голубович
Leave a Comment