
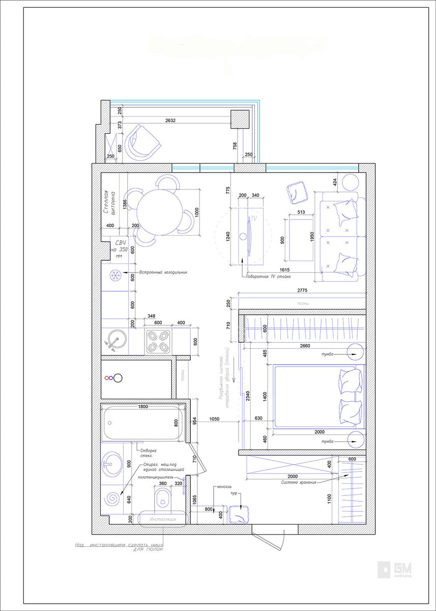
На сравнительно небольшой площади удалось разместить всё необходимое для комфортной жизни молодой пары.
Дизайн интерьера студия GM-interior

На сравнительно небольшой площади удалось разместить всё необходимое для комфортной жизни молодой пары.
Дизайн интерьера студия GM-interior
Leave a Comment