
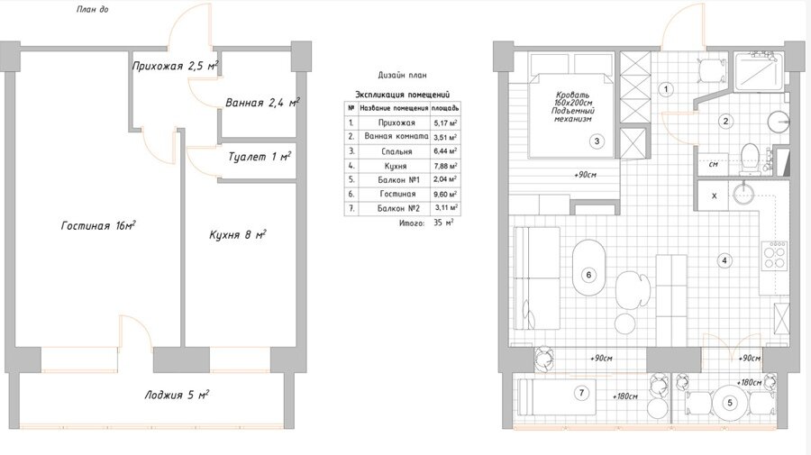
Зоны гостиной и кухни разделены стеллажом, а спальня — перегородкой.
Лоджия утеплена и на ней размещена обеденная зона.
Дизайн интерьера Юлия Тельнова

Зоны гостиной и кухни разделены стеллажом, а спальня — перегородкой.
Лоджия утеплена и на ней размещена обеденная зона.
Дизайн интерьера Юлия Тельнова
Leave a Comment