
Интересные решения дизайнеров для небольших квартир могут дать множество идей, кроме того, такой компактный дизайн интерьера может вдохновить на переделку небольших комнат и в более просторных жилых помещениях.
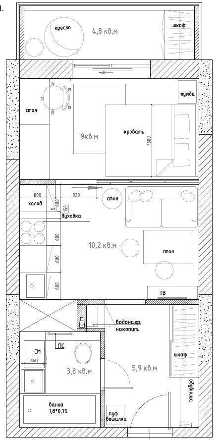
Представленный ниже проект студии площадью почти 29 кв.м. (с лоджией – 33,7 кв.м.) — один из таких примеров.
Площадь для студии не маленькая, что является одним из преимуществ этой квартиры.
Вторым весомым «плюсом» является её прямоугольная форма.
Но, начнем, по порядку.
Под прихожую отвели достаточно много места, поэтому при входе не чувствуется, что сама квартира — небольшая.
Интерьер здесь простой и современный, с продуманным освещением и с местами для хранения вещей.
Из прихожей можно попасть в ванную комнату, которая также не производит впечатления тесного и маленького помещения.
Белый цвет и большое зеркало сделали своё дело, при этом обилие холодного белого цвета хорошо «разбавлено» деревом и теплым серым оттенком эффектного узорчатого покрытия акцентной стены.
Любая студия нуждается в зонировании.
В данном случае, площадь и форма позволили остановиться на одном из самых удобных для жизни вариантов — при помощи перегородок. Здесь их несколько.
Между прихожей и кухней- гостиной установлена тонкая перегородка из гипсокартона, которая одновременно выполняет роль телевизионной стены.
В квартире применен еще один интересный вид зонирования — при помощи пола.
Как видите, рабочая зона кухни отделена от зоны гостиной-столовой при помощи разного напольного покрытия.
Конечно, проходная кухня может быть сочтена непрактичной, но многое зависит от того, кто живет в помещении.
Открытая кухня — отличный вариант для одиноких или молодых семейных пар, которые живут быстро и мало готовят дома.
Возводя классические глухие перегородки, мы рискуем не только излишним «утолщением пространства», но также сильно ограничиваем приток внешнего света в другие зоны.
Эта студия может «похвастаться» очень хорошим решением, особенно для таких небольших помещений — стеклянной перегородкой с раздвижной дверью, которая отделяет спальню от остального пространства.
Очевидно, что каждой, даже такой маленькой, квартире нужен тихий уголок, где мы можем расслабиться, отдохнуть, почитать и поспать.
И, конечно, лучше, чтобы эта зона была более приватной, чтобы её можно было закрыть от ненужных взглядов, когда в дом приходят гости.
Кроме кровати, в спальне, у противоположной стены разместили рабочее место с подвесными шкафами над и комодом под ним.
Как видите, именно для спальни отведено место у единственного окна, что вполне разумно — это то место, которое нуждается в доступе свежего воздуха больше всего.
Еще одним преимуществом данной квартиры является наличие достаточно просторной лоджии.
Здесь удалось не только разместить дополнительное место для отдыха, но и установить трехстворчатый шкаф для хранения вещей.
В заключении нужно отметить, что стиль данного интерьера скандинавский, а для его оформления многие предметы мебели, декора, текстиля приобретались в магазине ИКЕА.
Фото и дизайн интерьера Денис Серов







Leave a Comment