
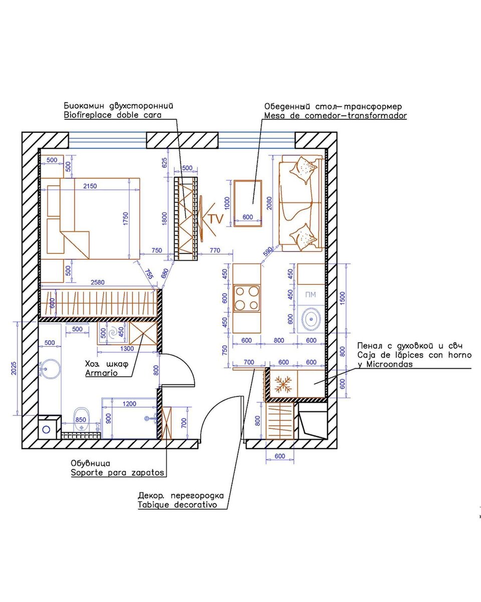
Кухню отодвинули к прихожей, за счет этого появилось место для мини-гостиной у окна.
Спальню отделили перегородкой со встроенным двусторонним биокамином.
Площадь 38 кв.м.
Дизайн интерьера Татьяна Кучина и Мария Шушарова

Кухню отодвинули к прихожей, за счет этого появилось место для мини-гостиной у окна.
Спальню отделили перегородкой со встроенным двусторонним биокамином.
Площадь 38 кв.м.
Дизайн интерьера Татьяна Кучина и Мария Шушарова
Leave a Comment